The 11 on Charles Towns

Newmarket,

6 views

Jan 13, 2025

(0)

11 on Charles: Exclusive Luxury Townhomes in the Heart of Newmarket

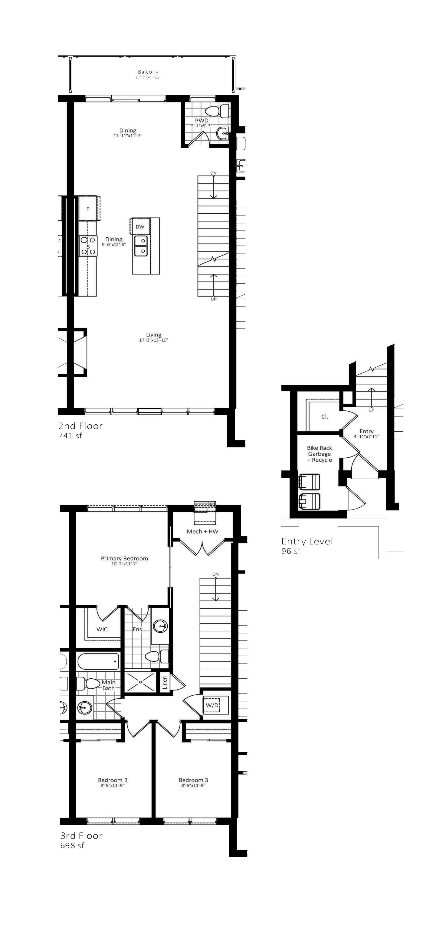
11 on Charles is an exclusive collection of just 11 luxury stacked townhomes, offering spacious layouts, modern architectural exteriors, and upgraded interiors. Perfectly situated in the heart of downtown Newmarket, these homes provide unparalleled convenience and access to the city’s finest amenities.

Seamless Connectivity

Commuting is effortless when living at 11 on Charles. The Newmarket GO Station, just a short walk away, offers bus and train services that connect directly to Toronto. Residents can reach Union Station and downtown Toronto in just 85 minutes via transit. For drivers, both Highways 404 and 400 are nearby, providing quick access to downtown Toronto in just over 40 minutes.

Vibrant Downtown Living

Residents will enjoy the perks of living in downtown Newmarket, with a wide array of lifestyle amenities within walking distance. Explore historic Main Street’s charming blend of local and brand-name dining, shopping, and entertainment options. Upper Canada Mall, featuring hundreds of retailers and services, is also just steps away.

Family-Friendly Community

11 on Charles is located in a family-focused neighborhood, surrounded by top-ranking schools, public libraries, state-of-the-art medical facilities, and community centers. Families will love the abundance of nearby parks and green spaces, including All Our Kids Playpark, Fairgrounds Park, Fairy Lake, and Wesley Brooks Conservation Area.

Trusted Developer

R.A.M. Contracting has been a trusted name in the Greater Toronto Area’s construction and renovation industry since 2000. Known for their dedication to quality and strong client relationships, they bring exceptional care and expertise to every project, cementing their reputation as one of Ontario’s premier builders.

Price:
Contact Sale

Contact agency

Kashif Abbas

Kashif Abbas

+ 1 647 888 2124

khanabbaskashif@gmail.com

View more

Contact

Write a review

Please log in to write review!

Related properties
Panorama Condos
4
Selling
Panorama Condos

Niagara Falls,

  • Price

    $444,900 - $486,000

  • Rating
    (0)
Sandstones Condos
1
Selling
  • Price

    $0 - $0

  • Rating
    (0)
BT Modern Towns
10
Selling
  • Price

    $1,079,900 - $1,599,900

  • Rating
    (0)
Georgian Bay Terrace Condos
16
Selling
  • Price

    $357,206 - $612,908

  • Rating
    (0)
Forest Gate Urban Towns
7
Selling
  • Price

    $1,070,999 - $1,105,999

  • Rating
    (0)
Vineyard Square Towns
11
Selling
Vineyard Square Towns

Niagara-on-the-Lake,

  • Price

    $15,900,000 - $0

  • Rating
    (0)